HB11 – Hotel Belval Luxemburg
Entwurfsziel ist es, im ehemaligen Hüttenareal im Süden von Luxemburg ein Hotel am zentralen Platz „Square Mile“ zu entwerfen. Das ausgewählte Grundstück befindet sich zwischen den stillgelegten Hochöfen, auf dem auch zwei leere Sinterbecken aus der Stahlperiode platziert sind, welche im Zuge der Neubebauung begrünt werden und somit großartige Aufenthaltsflächen im neuen urbanen Stadtquartier bieten.
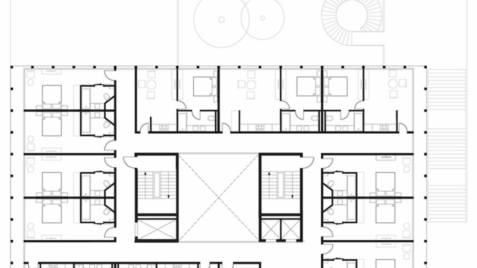
Der große Hotelkomplex bereichert die städtebauliche Situation am zentralen Platz, auf dem die Bauflucht des Quartierrasters aufgenommen wird. Der klar strukturierte, neungeschossige Baukörper mit strengem Raster und einer dominanten Sockelzone bildet ein starkes Element an diesem wichtigen Stadteingang. Die Sockelzone als halböffentlicher Gebäudekomplex beinhaltet neben der Lobby auch eine Gastronomiemöglichkeit, welche für Hotelgäste, sowie für die Laufkundschaft anberaumt ist. Die Dachfläche der dominanten Sockelzone wird als Aufenthaltsfläche genutzt und bietet durch ihre offene Gestaltung eine erhabene Blickbeziehung zu dem urbanen Vorplatz. In den Geschossen darüber sind 60 Zimmer unterschiedlicher Kategorien untergebracht. Das oberste Geschoss beinhaltet einen großen Wellnessbereich. Das Gebäude wird von zwei großen Höfen mit natürlichem Licht versorgt. Ein erster Lichthof befindet sich innerhalb der Sockelzone im Restaurantbereich. Der andere Lichthof befindet sich in der Mitte des sich abhebenden Baukörpers und zieht sich über alle Geschosse.
Projekte
Umbau und Sanierung eines denkmalgeschützten Wohnhauses mit dem Ziel, historische Bausubstanz zu erhalten und zugleich moderne Büroflächen zu schaffen. Das Projekt verbindet Denkmalschutz, Bauen im Bestand und zeitgemäße Nutzung zu einem funktionalen und architektonisch präzisen Gesamtkonzept. Durch eine sorgfältige Bestandsanalyse, eine sensible Materialwahl und die Neuorganisation der Grundrisse wurde die bestehende Struktur behutsam weiterentwickelt. Die […]
Das ca. um 1900 erbaute Mehrgenerationenhaus mit großer Gewerbefläche, welches zuletzt als Gastronomie mit großer Saalfläche genutzt wurde, soll zu reinen Wohnzwecken umgenutzt werden. Der 4-geschossige Gebäudekomplex mit einer Bruttogeschossfläche von ca. 750qm wird im Inneren kernsaniert und umgeplant. Neben den inneren Umbauten erfolgen auch neue Fensteröffnungen. Es entstehen insgesamt sechs neue großzügige Wohneinheiten, mit […]
Rekonstruktion und denkmalgerechte Wiederherstellung einer prägenden Straßenfassade mit dem Ziel, die ursprüngliche architektonische Qualität, Materialität und Proportionierung des Gebäudes nachhaltig zu sichern. Beschädigte sowie verlorene Fassadenelemente wurden auf Grundlage historischer Befunde sorgfältig restauriert oder handwerklich präzise rekonstruiert, um das charakteristische Erscheinungsbild authentisch wiederherzustellen. Im Zuge der Sanierung wurden maßgefertigte, denkmalgerechte Holzfenster integriert und die Erdgeschosszone […]

